PH REPETTO
Ampliación y reforma
Ubicación: Caballito, CABA
Año: 2015
Superficie: 42m2
Estado: construido (1er etapa)
Equipo de proyecto: iho arquitectos










Memoria
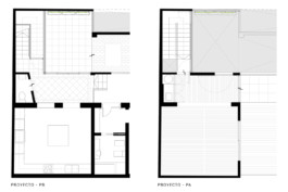
El proyecto -construido en su primera etapa- se trata de una reforma y ampliación en un clásico PH porteño. La vivienda está ubicada en un primer piso por escalera y cuenta con acceso individual desde la calle. La operación proyectual supuso la anexión programática de un salón de usos múltiples en la planta alta con conexión franca a la terraza (a desarrollar en una segunda etapa de proyecto), un toilette y un núcleo de escalera exento. Mediante esta simple operación se regularizó formalmente el patio y se integró el volumen existente en la terraza al conjunto. El volumen de escalera es un elemento prismático realizado completamente en estructura metálica y revestido en chapa en su exterior. El aventanamiento que acompaña el desarrollo de la escalera busca generar un recorrido experiencial de la vivienda de manera que a medida que se asciende se puede tener una visión dinámica de los espacios exteriores de la misma.
© 2017 iho-arquitectos. Todos los derechos reservados
PH REPETTO










Ampliación y reforma
Ubicación: Caballito, CABA
Año: 2015
Superficie: 42m2
Estado: construido (1er etapa)
Equipo de proyecto: iho arquitectos
Memoria
El proyecto -construido en su primera etapa- se trata de una reforma y ampliación en un clásico PH porteño. La vivienda está ubicada en un primer piso por escalera y cuenta con acceso individual desde la calle. La operación proyectual supuso la anexión programática de un salón de usos múltiples en la planta alta con conexión franca a la terraza (a desarrollar en una segunda etapa de proyecto), un toilette y un núcleo de escalera exento. Mediante esta simple operación se regularizó formalmente el patio y se integró el volumen existente en la terraza al conjunto. El volumen de escalera es un elemento prismático realizado completamente en estructura metálica y revestido en chapa en su exterior. El aventanamiento que acompaña el desarrollo de la escalera busca generar un recorrido experiencial de la vivienda de manera que a medida que se asciende se puede tener una visión dinámica de los espacios exteriores de la misma.
© 2017 iho-arquitectos. Todos los derechos reservados